Hochbunker
Wohnen auf einem denkmalgeschützten Hochbunker in Köln
Der Hochbunker im Kölner Stadtteil Zollstock wurde 1942 durch den Kölner Regierungsbaumeister Ernst Nolte als fünfgeschossiges Stahlbetongebäude (zwei Geschosse unter und drei Geschosse über der Erde) mit 210 Zellen für 1.500 Personen gebaut. Während des Krieges fanden 2.700 Personen darin Schutz. Auch nach Kriegsende war der Bunker noch bewohnt, danach in Teilbereichen als Lager genutzt. Das massive Betonbauwerk mit Tarndach und Dachgauben fügt sich trotz seiner Massivität in das Erscheinungsbild der gründerzeitlichen Wohnbebauung ein. 1995 wurde das Gebäude unter Denkmalschutz gestellt.
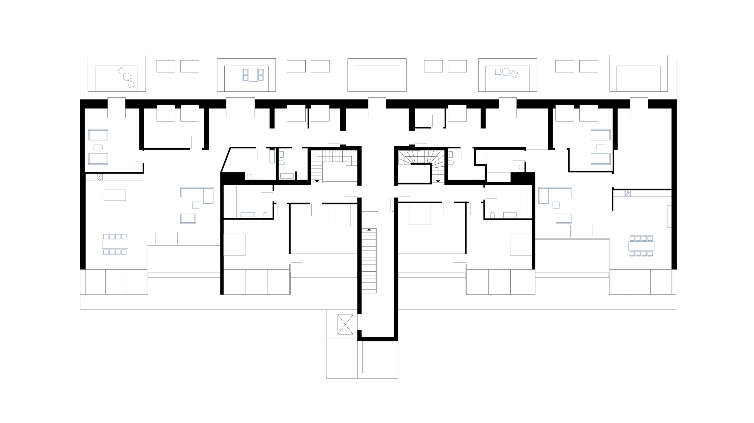
Der Bauherr beauftragte baut architektur 2006 mit der Umgestaltung des Dachraumes zu exklusiven Wohnungen. Geplant und realisiert wurden sechs großzügige Lofts zwischen 150 und 210 qm Wohnfläche, teilweise als Maisonettewohnungen.
Die nach Süden ausgerichtete und geneigte Gartenfassade ist vollständig verglast und wird durch Terrassen und Loggien gegliedert. Die transparente Pfosten-Riegel-Konstruktion steht in wirkungsvollem Kontrast zur tragenden Konstruktion aus Stahl und Beton, aber vor allem zum Bunker selbst. Die Lofts werden über ein eigenes, um einen gläsernen Aufzugsturm ergänztes Treppenhaus erschlossen. Ein Sonnendeck bietet beeindruckende Aussichten über die gesamte Kölner Stadtsilhouette. Begrenzt wird der Blick durch die grünen Kulissen des Bergischen Landes, des Siebengebirges und der Ville.

Ort: Herthastraße, Köln Zollstock
Auftraggebende: CUBUS Standort- und Projektentwicklung GmbH & Co. KG
Größe: ca. 1000 m²
Anzahl der Wohneinheiten: 6 Wohneinheiten
KG 300 und 400: ca. 1,9 Mio. €
Fertigstellung: 2008
Planungszeitraum: 2004 – 2006
Realisationszeitraum: 2006 – 2008
Beauftragte Leistungsphasen: 1-7

