Baugemeinschaft Familien@Clouth
Neubau auf dem Clouth-Quartier in Köln Nippes
2012 gründeten acht Familien die Baugemeinschaft Familien@Clouth, die im Vergabeverfahren der Entwicklungsgesellschaft moderne stadt für Baugrundstücke im Clouth-Quartier den Zuschlag für eine Parzelle am Rande zum Johannes-Giesberts-Park erhielt.
Die moderne stadt hatte Gestaltungsrichtlinien für Kubatur, Gliederung, Fassadenmaterial u.a. vorgegeben.
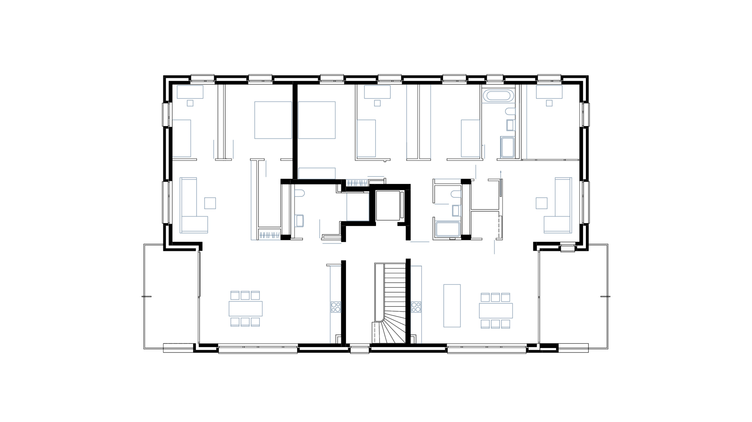
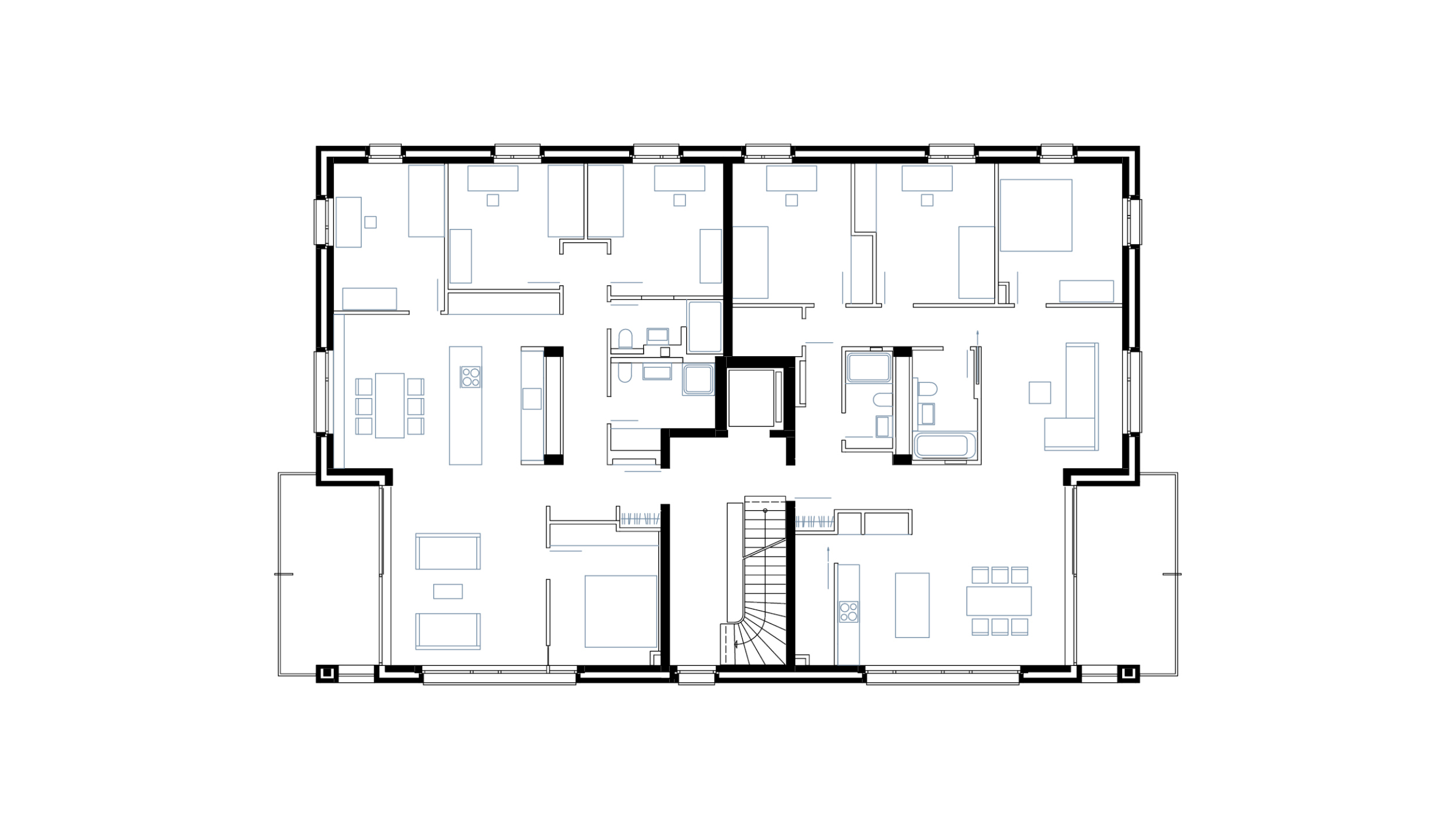
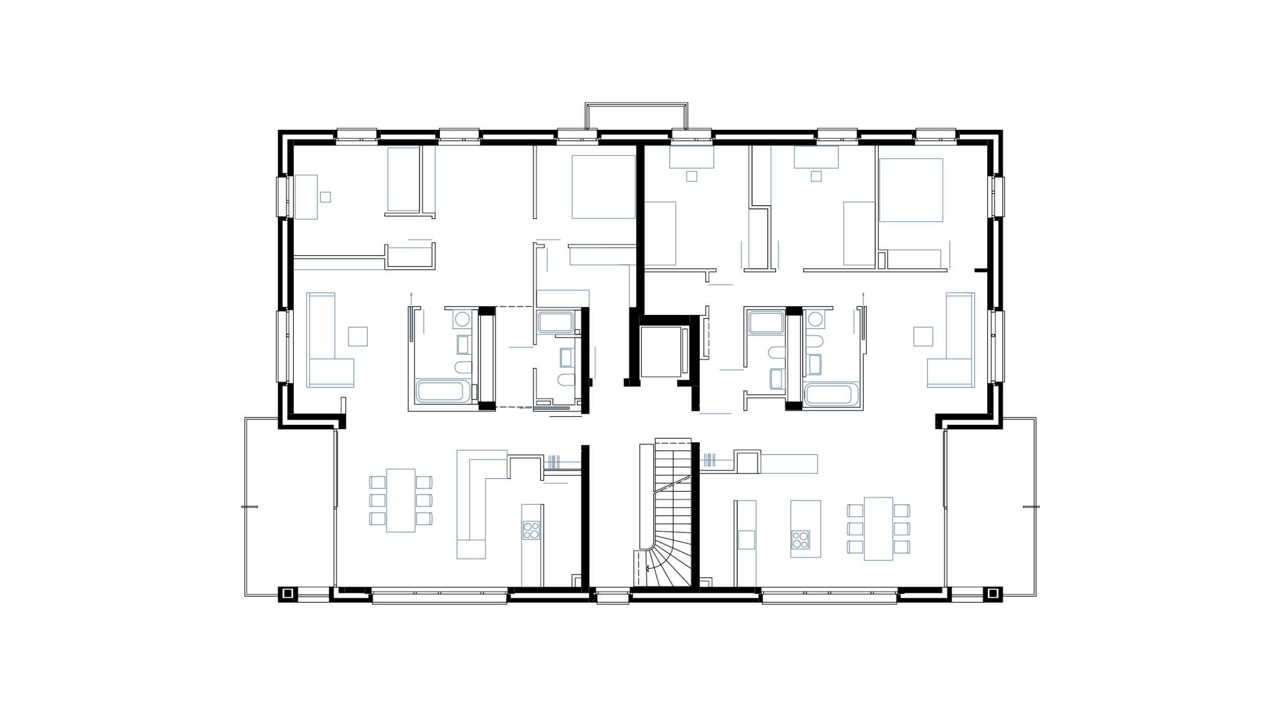
Wir entwarfen für die Baugruppe einen Zweispänner mit offenen Grundrissen, die wegen der unterschiedlichen Ausrichtung: ruhige Parklandschaft – lebhaftes Stadtquartier, jeweils eigene Qualitäten der Ausblicke, der Belichtung und Besonnung, dem Wohn- und Lebensgefühl erzeugen.
Den Bedürfnissen der Baufamilien entsprechend wurden gemeinsam die offenen Grundrisse individuell gestaltet. Exklusive Raumhöhen, große Fensterformate, die Materialwahl der Innenräume geben den Wohnungen Loftcharakter.
Der ausgewählte warme, anthrazitfarbene Backstein der sorgfältig detaillierten Fassade und die goldfarbenen, schlanken Fensterrahmen erzeugen einen lebhaften Dialog mit der Umgebungsbebauung und der Parklandschaft.
Durch das Engagement und den Eigenleistungen der Baugruppe konnten die Wohnungen zu vergleichsweise geringen Kosten errichtet werden; ein Beitrag zur aktuellen Debatte um qualitativ hochwertiges, dennoch erschwingliches Bauen in der Stadt.
Mit der benachbarten Baugruppe Energieplus entstand ein Gemeinschaftsgarten, der die unterschiedlichen Gebäude zu einem gemeinsamen Ensemble verbindet.

Ort: Am Walzwerk, Köln Nippes
Auftraggebende: Familien@Clouth
Größe: 1050 m² gem WoFIV
Nutzung: 8 Wohneinheiten
KG 300 und 400: ca. 2,14 Mio € – Brutto
Fertigstellung: 2017
Planungszeitraum: 2015 -2016
Realisationszeitraum: 2016 -2017
Beauftragte Leistungsphasen: 1-8

