Stadthäuser an der Rheinpromenade
Nachverdichtung in Köln Niehl
Das Projekt befindet sich im Stadtteil Niehl im Kölner Norden. Die eingestreuten Neubauten, der kleinteiligen Struktur des Ortes angepassten Einfamilien- und Stadthäuser, prägen das lebhafte Viertel. Die belebte Sebastianstraße mit dem Platz an der neuromanischen Kirche, St. Katharina, und dem zahlreichen, gut erhaltenen und renovierten Gebäudebestand, hat sich zum Zentrum entwickelt.
Die Rheinlage nördlich des Niehler Hafens wurde in den letzten Jahren als attraktiver Wohnstandort erkannt; Die dem Rheinufer zugewandte Seite des Ortes ist durch eine großzügige Allee mit Promenade gekennzeichnet.
Auf einem der letzten freien Grundstücke zwischen Sebastianstraße und der Rheinpromenade, Niehler Damm, plante die CUBUS GmbH den Neubau von 11 Stadthäusern, mit deren Planung das Büro baut architektur beauftragt wurde. In unmittelbarer Rheinlage entstanden fünf Häuser mit hoher Wohnqualität. Die viergeschossigen Stadthäuser orientieren sich mit den oberen Geschossen, die in voller Höhe in Glas aufgelöst und als „Guckkasten“ ausgebildet sind, mit Terrassen und Galerien, nach Südosten zum Rhein.
Die fünf Häuser sind zu zwei Doppelhauseinheiten gruppiert, deren Grundrisse sich, dem schrägen Straßenverlauf folgend, gegeneinander verschieben. Beiden Einheiten werden durch das dazwischengeschobene fünfte Haus getrennt. Damit entsteht eine städtebaulich und räumlich interessante Raumfolge.
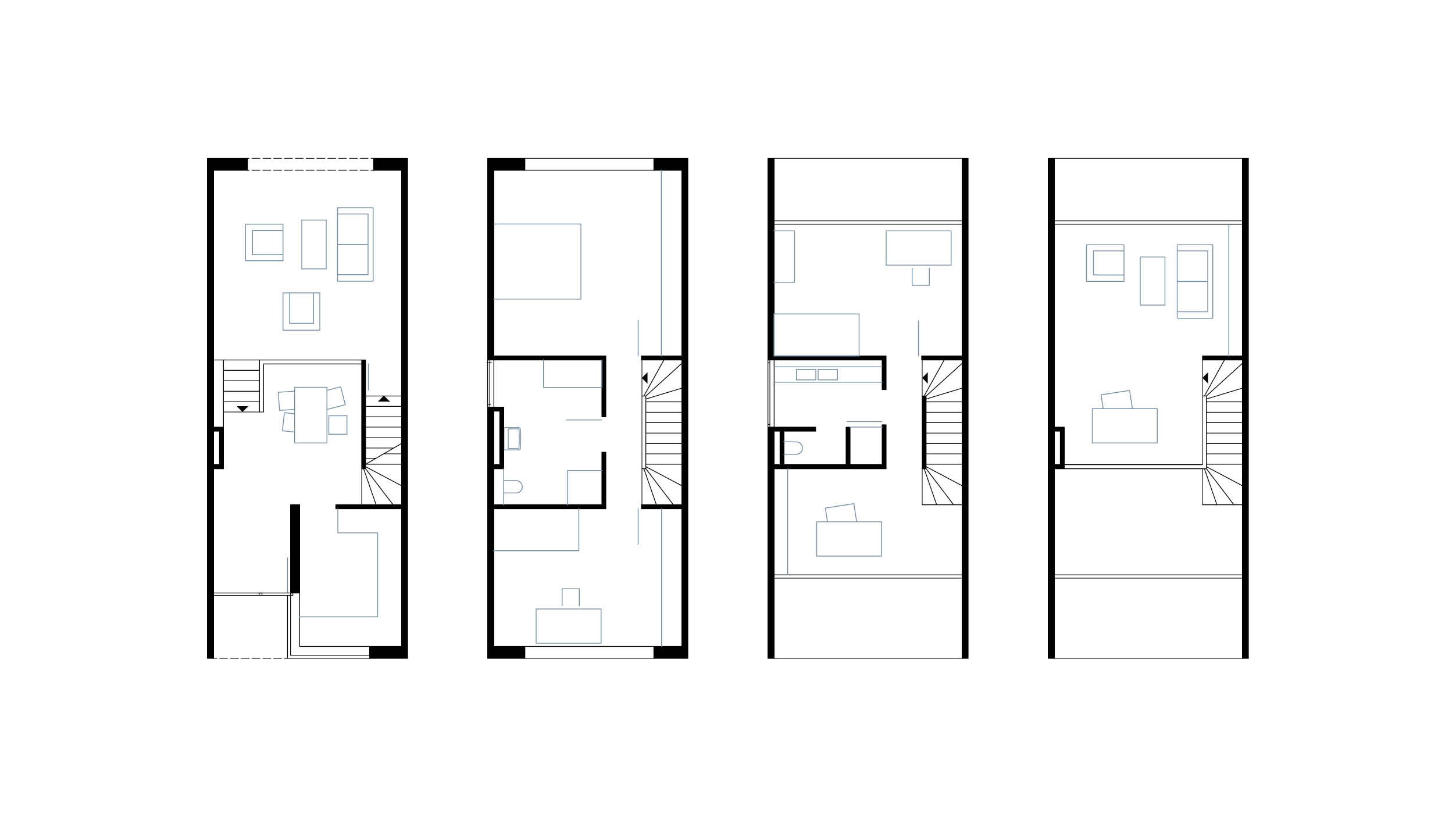
Da das Gartengrundstück unterhalb des Straßenniveaus liegt, wurden Erd- und Kellergeschoss als Split-Level-Ebenen geplant, wodurch für die Wohnräume im Erdgeschoss lichte Raumhöhen von 3,20 m möglich waren.
In den beiden oberen Geschossen, befinden sich die Schlaf- und Arbeitsräume sowie auf der 4. Ebene ein Galeriegeschoss mit weitem Blick auf den Rhein.

Ort: Niehler Damm, Köln Niehl
Größe: 1.1815 m² gem. WoFlV
Nutzung: 11 Stadthäuser
KG 300 und 400: ca. 3,5 Mio €
Fertigstellung: 2004
Beauftragte Leistungsphasen: 1-7

