Baugemeinschaft Laubendorf
Neubau in Düsseldorf-Gerresheim
Die Baugemeinschaft Laubendorf realisiert auf dem Gründstück Zittauerstraße 2-16 in Düsseldorf-Gerresheim 25 Eigentumswohnungen sowie Gemeinschafträume.
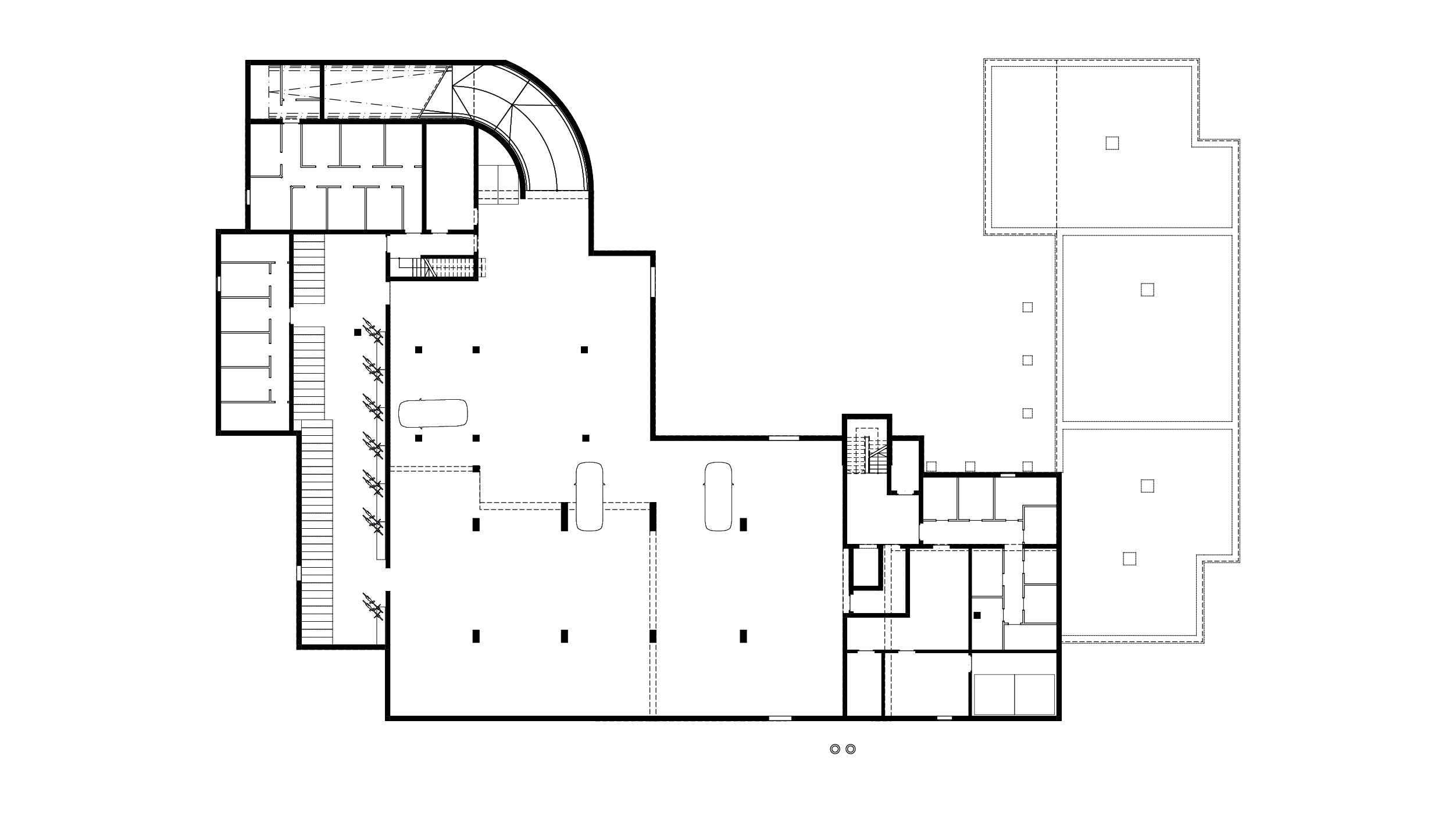
Der Neubau gliedert sich in zwei Hauptbaukörper, die durch eine gemeinsame Tiefgarage und Kellerräume verbunden sind. Das Untergeschoss wird in Massivbauweise erstellt, wogegen die drei oberirdischen Geschosse in Holzmischbauweise erstellt werden.
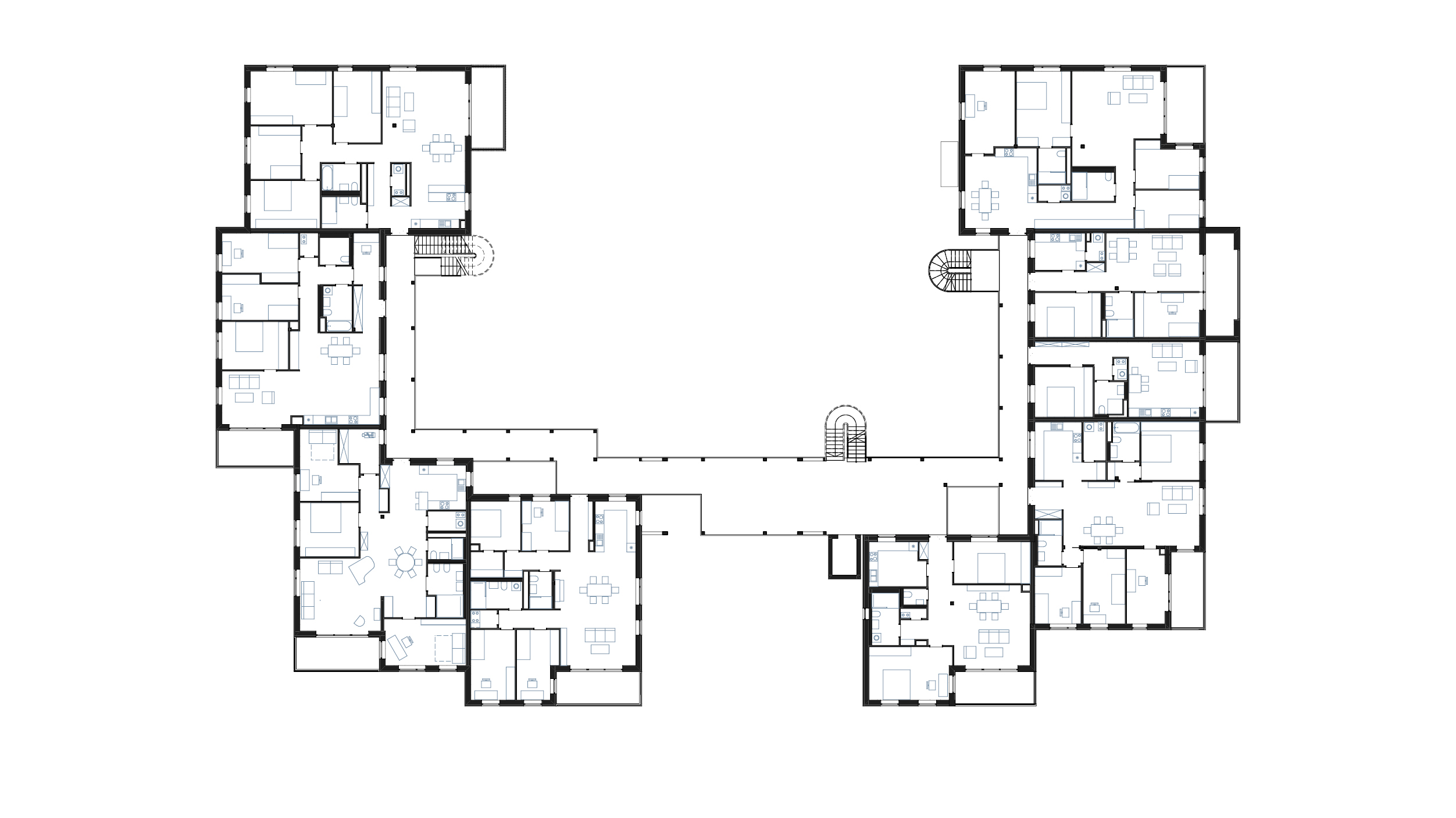
Die Hauptbaukörper sind jeweils in vier weitere Kuben untergliedert. Insgesamt entstehen so acht ablesbare Kuben, welche durch einen gemeinsamen Laubengang in Holzbauweise erschlossen werden. Zwischen den Hauptbaukörpern bildet der Laubengang eine zweigeschossige Brücke mit anschließendem Aufzugsturm.
Insgesamt entsteht eine u-förmige Anlage, welche sich um den gemeinschaftlich genutzten Hof mit Kinderspielflächen legt. Zur Straße liegen die privaten Freisitze, sowie private Gartenflächen der Eigentümer:innen.
Die durch den B-Plan vorgegebene Bebauung mit zwei Vollgeschossen plus Staffelgeschoss wurde genutzt, um erlebbare Dachflächen mit einer intensiven Dachbegrünung zu schaffen. Diese gliedern sich seitlich an die Dachterrassen, die konstruktiv aus Gründen des Wärmeschutzes und der Barrierefreiheit von den Hauptbaukörpern getrennt wurden.
Innen bleibt der Holzbau durch Holzsichtdecken in Holz-Beton-Verbundbauweise und sichtbare Holzstützen erlebbar. Mit Ausnahme einiger Stahlunterzüge konnten die oberirdischen Geschosse inklusive den Balkonen vollständig als konstruktiver Holzbau erstellt werden. Nach außen präsentiert sich der Bau in einem mineralischen Edelkratzputz und fügt sich derart in das Neubaugebiet ein.
Die einzelnen Kuben werden dabei durch Farbabstufungen im Kratzputz betont. Die Innenflächen, der aus den Kuben „ausgeschnitten“ Balkon- und Terrassenflächen, werden farblich abgehoben und tragen zur Charakterisierung des Projektes bei.
Über die Holz-Brücke bleibt das Thema Holz auch zur Nachbarschaft sichtbar. Die Brücke verbindet dabei nicht nur die beiden Baukörper, sondern dient auch als Treffpunkt für die Gemeinschaft.
Es werden Wohnungen in unterschiedlichen Größen von 50 bis 150 m² errichtet, wobei ein Schwerpunkt auf familienfreundliche 3 bis 5 Zimmer Wohnungen gelegt wurde.
Das Gebäude wird als Passivhaus / KFW 40 Plus mit Eigenstromerzeugung realisiert. Die Wärmeerzeugung erfolgt durch eine Holzpelletanlage.

Ort: Düsseldorf, Zittauerstraße
Auftraggebende: Baugemeinschaft Laubendorf GbR
Arbeitsgemeinschaft mit
Baufrösche Architekten und Stadtplaner GmbH, Kassel
Größe: ca. 3.000 m² gem. WoFIV
Nutzung: 25 Eigentumswohnungen
KG 300 und 400: ca. 8.3 Mio €
Planungsszeitraum: 2020
Baubeginn: 2021

