Rosenmaarschule & KGS Osterather Straße

Rosenmaarschule & KGS Osterather Straße

Schulerweiterung in Holzmodulbauweise, Köln

 

Die Stadt Köln begegnet steigenden Schülerzahlen und gestiegenen Anforderungen hinsichtlich Qualität und Sicherheit.

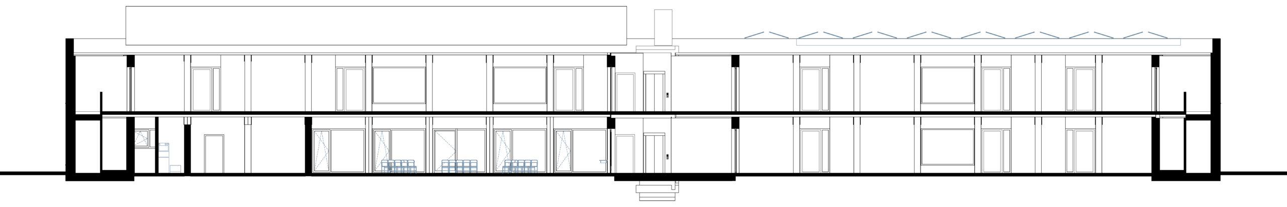
Modulare Bausysteme zeichnen sich durch erheblich kürzere Bauzeiten verglichen zur konventionellen Bauweise aus. Die einzelnen Bauteile werden  industriell vorgefertigt, an die Baustelle geliefert und montiert. Fundamente werden vor Ort betoniert, Aufzugsschacht und Treppenhauskerne aus Betonfertigteilen errichtet.

Konzipiert und produziert für eine lange Standzeit, haben Holzbauten auch durch ihre hohe Wärmedämmung eine viel höhere Energieeffizienz als konventionelle Bauten. Holz ist ein Baustoff, der auf natürliche Weise nachwächst und dabei klimapositive Effekte durch die Bindung von Kohlenstoffdioxid produziert. Gebäude aus Holzmodulen können einfacher zurückgebaut und wiederverwertet oder recycelt werden.

 

 

 

 
 

Auftraggeberin
Stadt Köln

Standorte
Am Rosenmaar 3, Köln
Osterather Straße 13, Köln

Planungs- und Bauzeit
Oktober 2022 bis 1.Quartal 2024

Umfang
jeweils ca. 1.700 m² NF

Baukosten
jeweils ca. 8,0 Mio €

Energiestandard
KfW 40 / Passivhaus

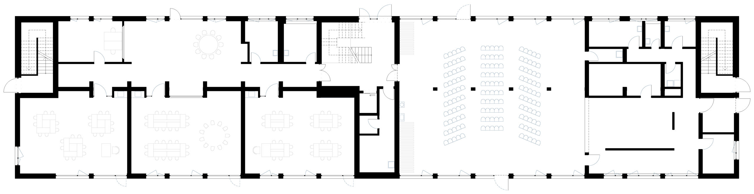
Die Rosenmaarschule – ein Komplex aus den 1950er-Jahren, umgeben von Freigelände inklusive Schäfchenhaltung – befindet sich im vorstädtischen Umfeld von Köln-Holweide, das durch Wohnungsbau geprägt ist. Mit unserem Gebäudekonzept schaffen wir für 180 Schülerinnen und Schüler neben Klassenzimmern und Bereichen für freie und innovative Lernformen ein Schülerzentrum, das dem pädagogischen Konzept den entsprechenden Raum gibt. Durch die Sichtbarkeit der Holzkonstruktion und die für den Modulbau typischen Ausbauten entsteht eine warme und hochwertige Atmosphäre, die die Schulkinder willkommen heißt.
 
 
Die Grundschule Osterather Straße befindet sich in einem heterogen geprägten Umfeld, wo Wohnungsbau Gewerbe verdrängt. Das denkmalgeschützte Hauptgebäude wurde in den letzten Jahrzehnten durch Bauten ergänzt, die inzwischen zum Teil baufällig sind. Das Gebäude befindet sich zusätzlich zu den Schulräumen eine Mensa mit 150 Sitzplätzen sowie eine Schulküche.

Das Konzept wurde von der Auftragserteilung im Oktober 2022 bis Mai 2023 von baut architektur gemeinsam mit Blumer-Lehmann entwickelt und mit der Gebäudewirtschaft der Stadt Köln abgestimmt. Nach Erteilung der Baugenehmigung im 3. Quartal 2023 werden die Holzmodule witterungsunabhängig im Werk in Hessen gefertigt, auf die Baustelle nach Köln geliefert und zum Gebäude montiert. Nach nur eineinhalbjähriger Planungs- und Bauzeit wird die Schulerweiterung im 1. Quartal 2024 fertiggestellt.

Download Projektbeschreibung