Baugemeinschaft Sarkauer Allee
Neubau in Holz-Mischbauweise in Berlin Charlottenburg
Im Westen von Berlin Charlottenburg entstand, auf einem von der städtischen Wohnungsbaugesellschaft Gesobau AG für Baugemeinschaften zur Verfügung gestellten Grundstückes, ein Mehrgenerationen-Wohnprojekt in Holz-Mischbauweise in Nachbarschaft des Olympiastadions und zahlreicher Sportstätten und Leistungszentren. Im Süden des Grundstücks liegt eine offene, jedoch ca. 6 m tiefer gelegene S-Bahn Station.
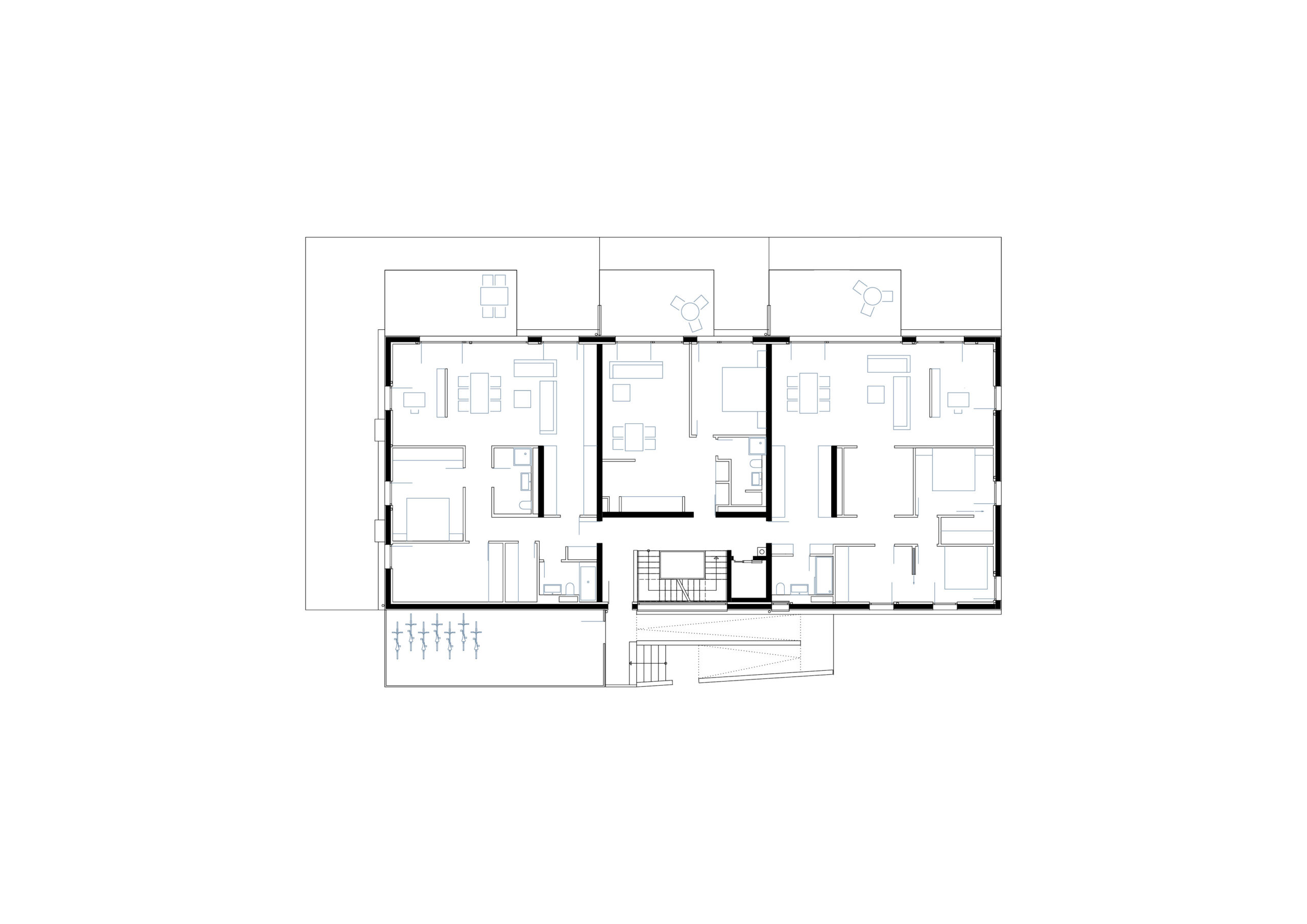
Die daraus resultierenden bestimmenden Entwurfseinflüsse führten zu der gewählten städtebaulichen Form: zwei Gebäude an den Grundstücksgrenzen umschließen einen nach Süden offenen Gemeinschaftsgarten. Im nördlichen Gebäude befinden sich acht großzügige Stadthäuser. Die Grundrisse auf drei Etagen ermöglichen, mit bis zu fünf Schlafzimmern in den oberen Etagen, Wohnraum für kinderreiche Familien. Im Osten des Grundstücks befindet sich ein Mehrfamilienhaus mit elf unterschiedlich großen Wohnungen.
Alle Wohnungen öffnen sich zum Garten hin mit großflächigen Fenstern, die Straßenseiten dagegen sind geschlossener gestaltet.
Wegen Vorteilen bei Kosten und Schallschutz wurde die innere Struktur konventionell aus Mauerwerk und Betondecken errichtet, während die Fassaden und Dächer aus vorgefertigten Holzbauteilen bestehen.
Der unmittelbar vor dem Grundstück gelegenen S-Bahnhof Pichelsdorf sowie die Nähe zur Heerstraße gewährleisten eine hervorragende Anbindung an die Berliner Innenstadt.

Ort: Berlin, Sarkauer Allee
Auftraggebende: Grunderwerbsgemeinschaft S.A. 1a GbR
Größe: ca. 2.400 m² gem. WoFIV
Nutzung: 8 Stadthäuser / 8 Wohnungen
KG 300 und 400: ca. 4.0 Mio €
Realisierungszeitraum: 2011 – 2015

