Schule Kartäuserwall Köln
Baustart der Schulerweiterung des Humboldt-Gymnasiums
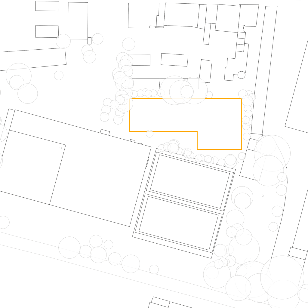
Mit dem Erweiterungsbau erhält das denkmalgeschützte Humboldt-Gymnasium ein L-förmiges Gebäude mit Unterrichtsräumen und einer integrierten Sporthalle. Die dreigeschossige Struktur orientiert sich am Bestand und fügt sich mit hellem Klinker zurückhaltend, aber eigenständig in das Ensemble ein. Der Neubau schafft neue Lernräume mit hoher Aufenthaltsqualität, flexibler Nutzung und kommunikativen Zonen.
Die Sporthalle ergänzt das pädagogische Konzept durch barrierefreie Umkleiden, belichtete Spielflächen und eine ruhige Fassadengestaltung gemäß denkmalpflegerischen Vorgaben. Innen sorgen warme Farben und Holzoberflächen für eine angenehme Atmosphäre, sowohl im Schulalltag als auch im sportlichen Betrieb.

Ort: Köln, Kartäuserwall
Auftraggebende: Gebäudewirtschaft d. Stadt Köln
Größe: ca.2.642 m² NUF
Nutzung: Schule
KG 300 und 400: ca. 11.2 Mio €
Planungsszeitraum: Januar bis September 2025
Baubeginn: Juli 2025

