Temporäre Schulen
Schulerweiterung in Holzbauweise

Ort: Peter-Grieß-Straße, Köln
Auftraggebende: Gebäudewirtschaft d. Stadt Köln
Größe: 739 m² NUF
300 + 400: ca. 3.5 Mio €
Planungszeitraum: Nov 2023 – April 2024
Realisierungszeitraum: April 2024 – August 2024

Auftraggebende: Gebäudewirtschaft d. Stadt Köln
Größe: 280 m² NUF
300 + 400: ca. 1.3 Mio €
Planungszeitraum: Nov 2023 – April 2024
Realisierungszeitraum: April 2024 – August 2024
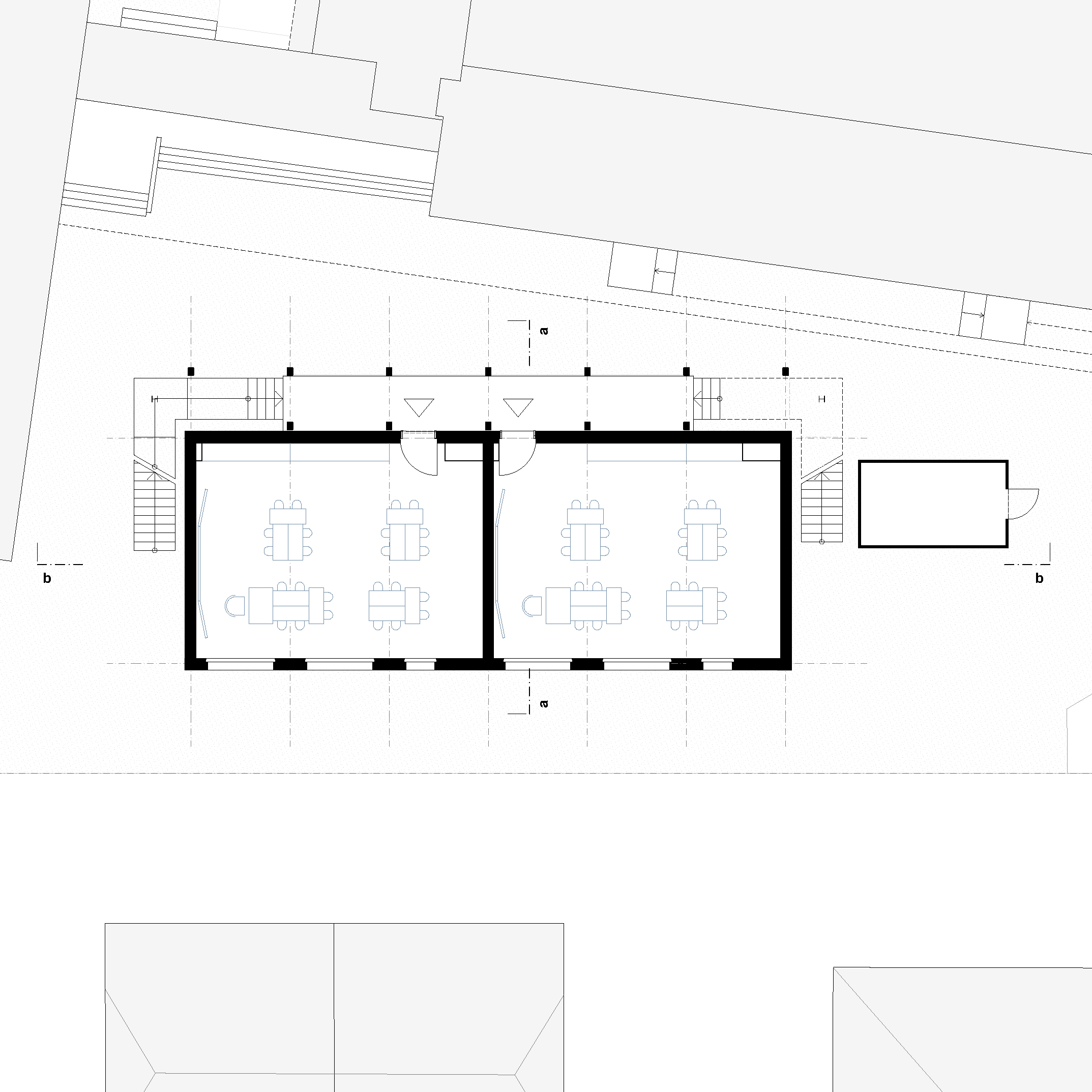
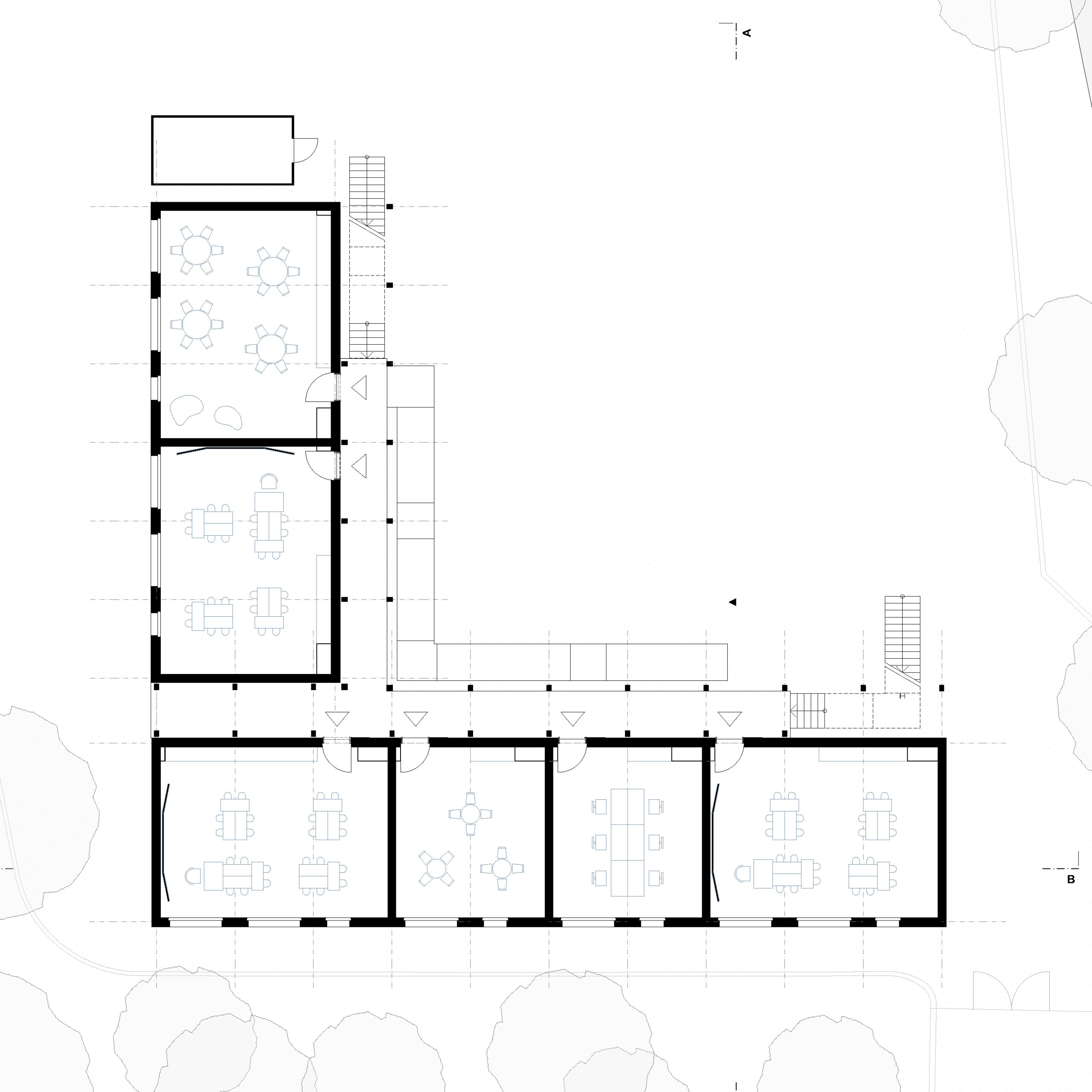
baut architektur wurde durch die Blumer-Lehmann GmbH mit der Objektplanung der Gebäude beauftragt. Ziel der Projekte war es, nicht nur die Inbetriebnahme der Gebäude zum nächsten Schuljahr zu realisieren, sondern auch eine hochwertige Gebäudehülle und Ausstattung für eine gute Lernatmosphäre zu schaffen. Die Gebäude setzen sich aus drei Modultypen zusammen. Alle Räume werden über einen außenliegenden Laubengang verbunden, der ebenfalls in Holzbauweise realisiert werden konnte.
Konstruktiv wurden die Module derart konstruiert, dass das Gebäude nach der Nutzungsphase an den Standorten wieder in Modulen an einem anderen Standort weiterverwendet werden können. Daher wurde auch lediglich ein leichtes Pultdach mit PV auf die Module aufgesetzt. Durch die hochwärmegedämmten Außenwände in Holzständerbauweise erfüllen die Gebäude den KFW 40 Standard.
Die notwendige Technik wurde separat realisiert. Beide Standorte werden unabhängig von den Bestandsgebäuden über eine Lüft-Wärmepumpe beheizt. Die Klassenräume werden großzügig über bodentiefe Fenster belichtet. Zusätzlich zur möglichen Fensterlüftung wurden dezentrale Lüftungsgeräte mit Wärmerückgewinnung verbaut.


Fotografie: Annika Feuss, Köln
In jedem Klassenraum wurden zudem Einbauschränke und Garderoben für die Schüler*innen umgesetzt. Die eingesetzten Dreischichtplatten, der farbige Linoleumboden und die mineralische gebundenen Holzwolleplatten der Akustikdecke schaffen eine warme Lernatmosphäre mit hoher Aufenthaltsqualität. Die Gäubde wurden grundsätzlich barrierefrei geplant. Für die vollständige Barrierefreiheit kann nachträglich ein außenliegender Aufzug angebaut werden.

