KiTa Limpericher Straße
Kindertagesstätte in Bonn

Ort: Bonn , Beuel
Auftraggeberin: Gebäudemanagment Stadt Bonn
Arbeitsgemeinschaft: Baufrösche Architekten 🡥
Größe: 804 m²
Nutzung: 3 Gruppen in privater Trägerschaft
KG 300 und 400: 3,3 Mio €
Planungszeitraum: 2019 – 2021
Bauphase: 2022 – 2024
Fertigstellung: 2024
Energiestandard: KfW 40
Im Bonner Stadtteil Limperich, südlich von Beuel und direkt am alten Rheinarm „Muchwasser“, entsteht ein moderner Kindergarten, der Architektur, Pädagogik und Natur harmonisch miteinander verbindet. Das langgestreckte Grundstück, erschlossen über die Limpericher Straße, bietet mit seiner besonderen Lage ideale Voraussetzungen für ein kindgerechtes Umfeld mit viel Freiraum und Nähe zur Natur.
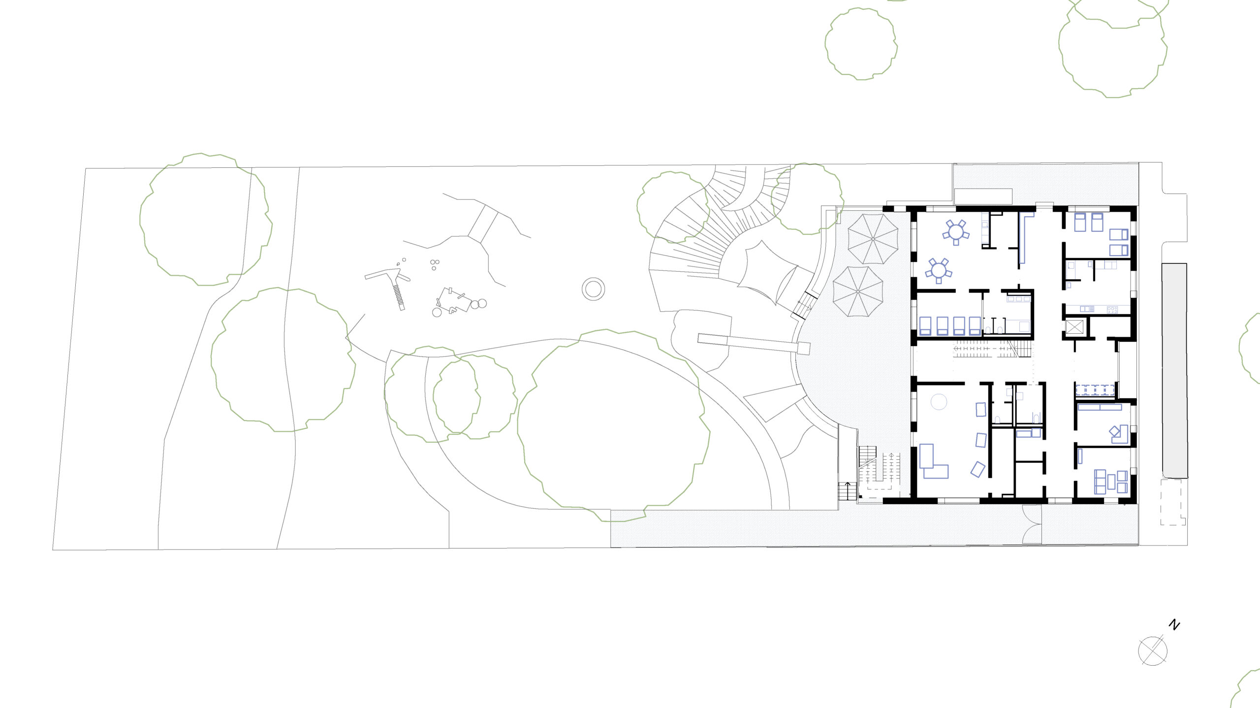
Der zweigeschossige Neubau folgt einem kreuzförmigen Erschließungskonzept, bei dem alle Gruppenräume sowie der große Mehrzweckraum zur sonnigen Südseite und dem Außengelände orientiert sind. Der Haupteingang liegt leicht zurückversetzt an der Nordseite und schafft einen geschützten, überdachten Vorbereich zur Straße.

Im Inneren öffnet sich der zentrale Treppenraum mit direktem Blick auf die großzügige Terrasse, die schwellenfrei an das Gebäude anschließt. Ein umlaufender Balkon im Obergeschoss dient als zweiter Rettungsweg und wird über eine Außentreppe mit der Terrasse verbunden. Die Dachkonstruktion kragt bis zur Balkonvorderkante aus und bildet mit seitlichen Wänden einen klar gefassten Rahmen für die Außenbereiche. Das Gebäude wird aus monolithischen Hochlochziegeln mit mineralischem Putzsystem errichtet. Ein Sockel aus wasserundurchlässigem Beton schützt vor Hochwasser und definiert gleichzeitig die Brüstungshöhe.

Gestalterisch überzeugt der schlichte Baukörper durch eine lebendige Lochfassade mit farbigen Holz-Aluminium-Fenstern und strukturierten Aluminium-Lochblechen, die als Wetter- und Einbruchschutz dienen und eine natürliche Nachauskühlung ermöglichen. Das Flachdach wird als Kombination aus extensiver Begrünung und Photovoltaikanlage ausgelegt und erfüllt den KfW 40 Standard.
Die Außenanlagen überwinden einen Höhenunterschied von rund zwei Metern und bieten vielfältige Spielmöglichkeiten: Eine große Terrasse bildet den Übergang zum tieferliegenden Gelände mit naturnah gestalteten Spielgeräten, das unter anderem über eine Rutsche erschlossen wird. Bestehende Bäume und der Erdwall zum Muchwasser werden behutsam in die Gestaltung integriert und schaffen eine grüne, geschützte Umgebung für die Kinder.

